本案例位于上海崇明奧倫達部落內,是一個集裝箱改造項目,原基地在一片開闊的草地上,四周無房屋遮擋,讓集裝箱顯得孤立,加上內部狹窄空間局促的缺陷,使得該項目有很大的挑戰性。
▼項目鳥瞰
▼本案例是一個集裝箱改造項目
集裝箱由十個盒子錯落組成,看似簡單的盒子要設計出獨特美感的設計訴求,只有大膽突破集裝箱的表象,進而擴展到外圍空間,讓封閉的盒子有個影子即再外擴一個虛擬的盒子,擴大使用面積,功能得到滿足。虛擬的盒子重疊在一起,形成虛實對比,相得益彰,光影落在百葉的盒子里,從而產生詩意般的美感,讓每個集裝箱的盒子再生一個虛擬的百葉盒子,從而產生高低錯落,穿插疊加,使盒子產生現代建筑感、未來感,成為一個建筑畫面的主旋律,讓身處其中變得更加美好!
▼光影落在百葉的盒子里,產生詩意的美感
▼高低錯落,穿插疊加的體量
▼封閉的盒子外部再擴充一個虛擬的盒子,帶來空間的虛實對比
▼交織的體量細部
整個建筑群的顏色由白色和木色構成,淺原木色搭配白色給人以干凈,簡約,現代的視覺感;結合周邊大地的綠色襯托,使得整個建筑與自然分外協調,相輔相成。蜿蜒的河流貫穿整個建筑的中央,使得建筑群更加充滿靈氣,仿佛潺潺的流水孕育著這些建筑群。
▼干凈,簡約,現代的視覺感
▼涼廊
▼涼廊細部
整個建筑為三層,一層為展示接待;二層為簡餐、咖啡、茶飲;三層為辦公、會議、商務。整個設計動線順應大自然,一步一景,禪意的元素和現代的極簡契合,使得整個風格一氣呵成。室內室外連成一片,用創意顛覆了傳統,使建筑由內而外發出了靈魂的光芒!
▼室外平臺
▼一層的景觀涼廊
▼樓梯
▼室內空間
▼樓梯細部
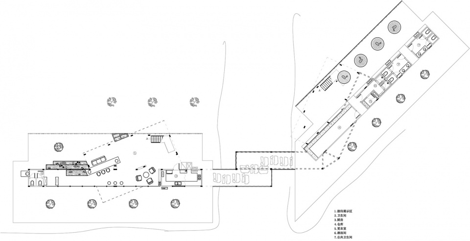
▼首層平面圖
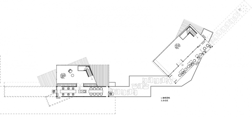
▼2層平面圖
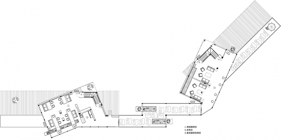
▼3層平面圖
項目類型:接待展示中心
項目地點:上海市崇明島海永鎮
項目面積:建筑面積1800平方米,景觀占地面積2000平方米
備注:本案例來源于網絡,僅供分享、參考、瀏覽,如有版權問題,請第一時間聯系我們,我們會盡快配合你們進行處理,謝謝


服務熱線:15327288876




